Eden Exchange – Thesis Project
Eden Exchange is an interior design thesis exploring how space can support individuals navigating the quarter-life crisis. The project reimagines a collaborative environment that encourages creative expression, meaningful social connection, and varying levels of commitment through three spatial zones: a social lounge, a sustainable clothing atelier, and a tattoo studio. Together, these spaces foster empathy, accountability, and a sense of belonging through shared creative experiences.
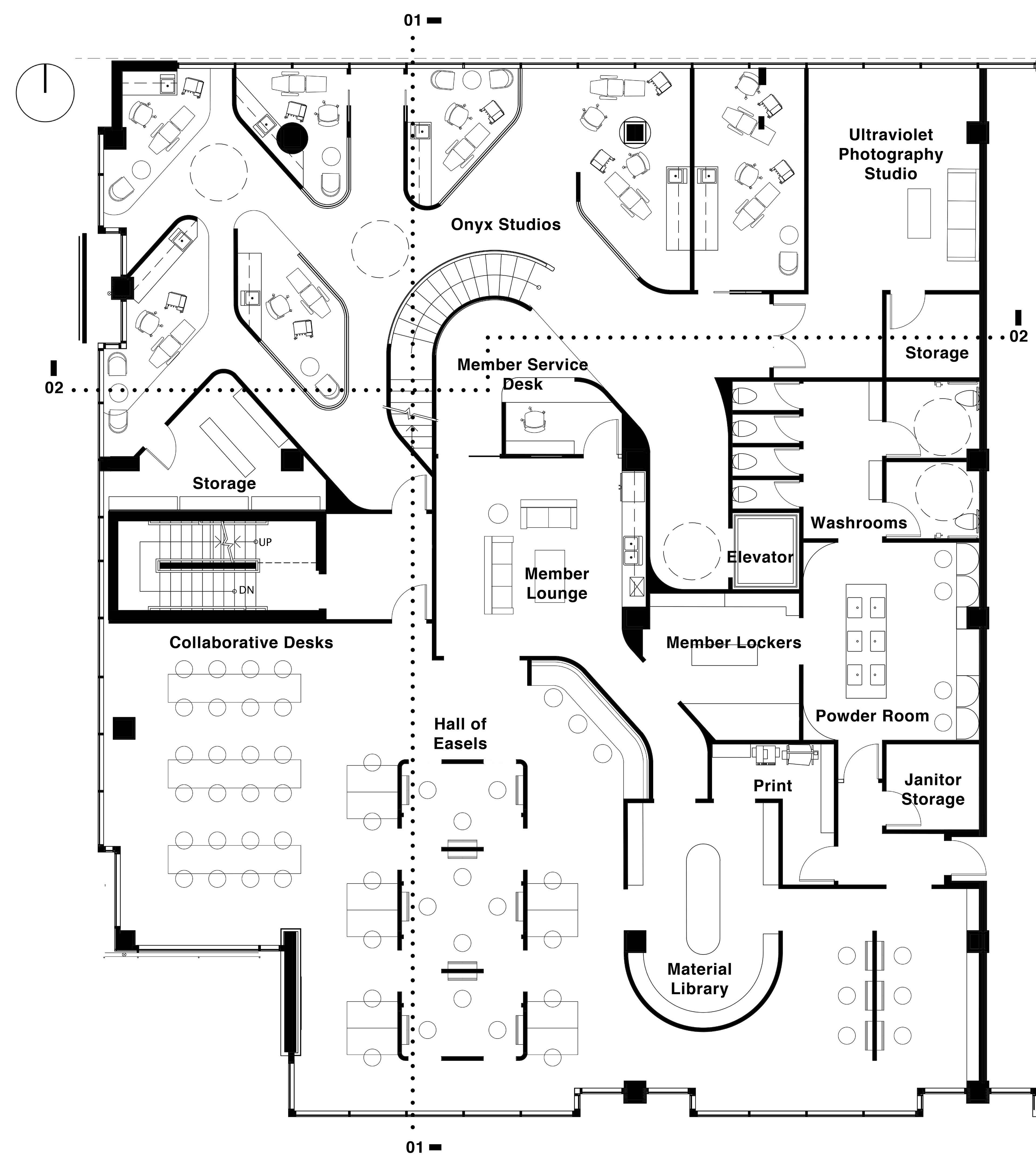
Floor 01
Floor 01
Axonometric view
Axonometric view
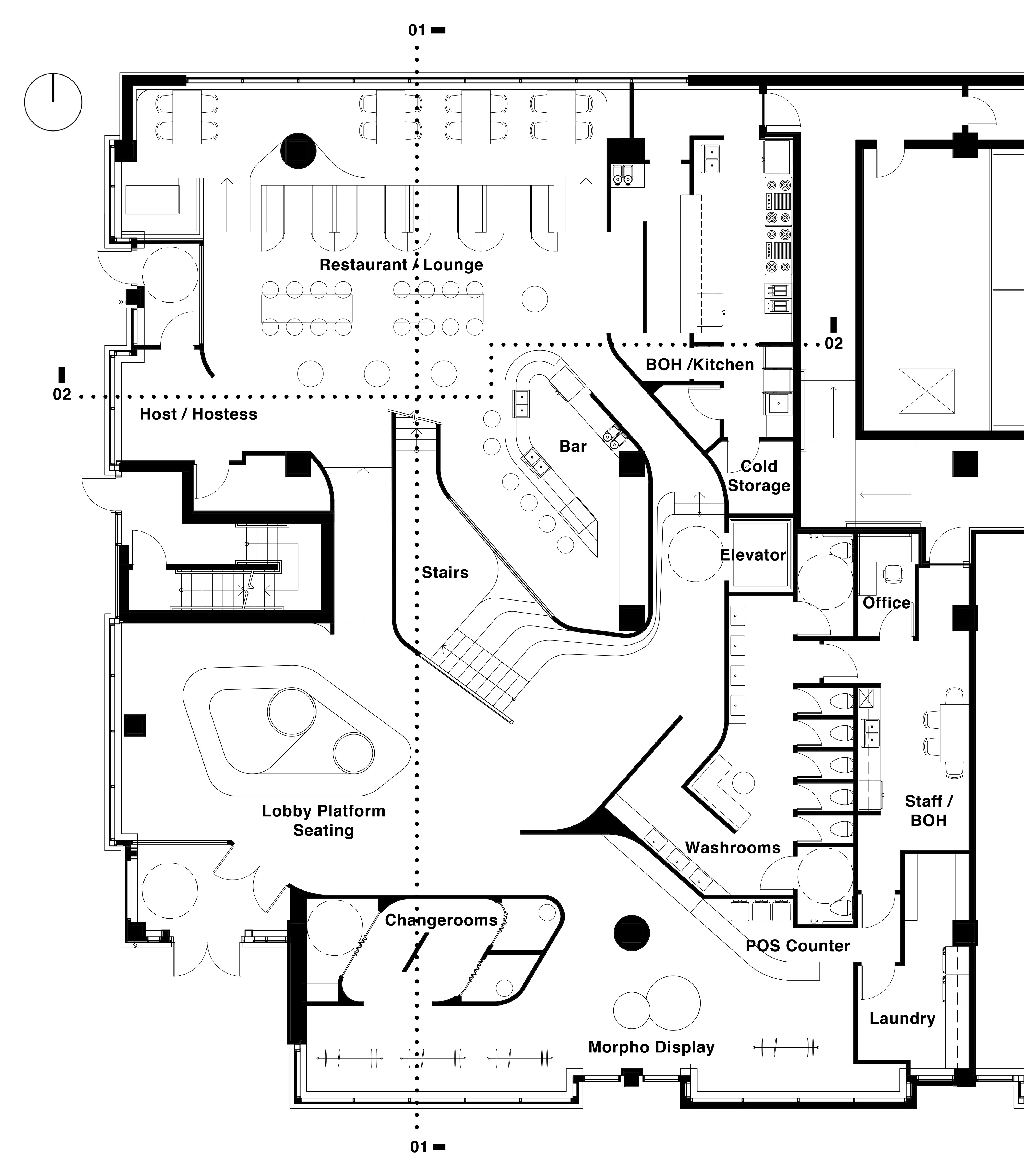
Floor 02
Floor 02
3D Renderings
Onyx Tattoo Studios
Onyx Tattoo Studios
Onyx Tattoo Studios
Onyx Tattoo Studios
Main Staircase
Main Staircase
Morpho Atelier
Morpho Atelier
Ambrosia Restaurant / Lounge
Ambrosia Restaurant / Lounge
Ambrosia Restaurant / Lounge
Ambrosia Restaurant / Lounge
Chrysalis Collective
Chrysalis Collective
Chrysalis Collective
Chrysalis Collective
Chrysalis Collective - Hall of Easels
Chrysalis Collective - Hall of Easels
Chrysalis Collective - Audio Library
Chrysalis Collective - Audio Library
Chrysalis Collective - Member Lounge
Chrysalis Collective - Member Lounge
Chrysalis Collective - Collaborative Desks
Chrysalis Collective - Collaborative Desks
Verve Condos - Apartment Redesign
Verve Condos is a residential apartment redesign focused on improving spatial flow, functionality, and visual cohesion. The project reimagines an existing unit to create a more balanced, contemporary living environment through refined material choices, lighting, and layout adjustments.
3D Renderings
Residential Staging
Back to Top